

Železnički službenik Ričard Sirs ušao je u istoriju kao začetnik kataloške prodaje kuća u Americi. On je početkom XX veka osmislio katalog „Moderne kuće i građevinski planovi“, na osnovu kojeg je od 1908. do 1940. godine izgrađeno ukupno 370 tipova kuća širom SAD.
Jedna takva kuća, podignuta 1930. godine, postala je vremenom previše skučena za veliku farmersku porodicu, pa su vlasnici pozvali u pomoć arhitekte iz bostonskog biroa Labhous, koji su smislili sjajnu ideju kako da njihovo tradicionalno imanje odenu u moderno ruho.
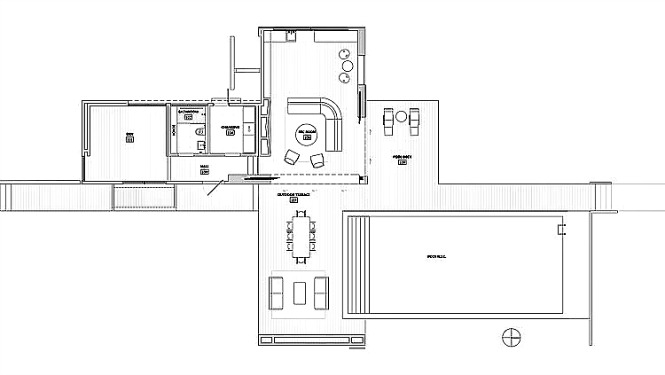
Prvi zadatak: Osmisliti mali, ali funkcionalan prostor
Prvi zadarak koji su dobile arhitekte bio je da da osmisle mali, ali funkcionalan depandans na posedu domaćina od 12.000 kvadrata koji se nalazi na jedan sat vožnje automobilom od Bostona. Rezultat - jednostavan oblik i maksimalno iskorišćen prostor u kome su smeštene dve nove spavaće sobe, kancelarijski prostor, kupatilo i lođa.

Drugi zadatak: Obezbediti privatnost
Drugi zadatak stručnjaka iz Labhousa bio je da obezbede privatnost i ušuškaju kuću od pogleda suseda, pa makar oni bili i najbolji prijatelji. Stoga su arhitekte ispred velikih staklenih površina postavili pregrade. One su takođe od stakla, ali s horizontalnim prugama koje propuštaju dnevno svetlo, a istovremeno onemogučavaju zadiranje u privatnost vlasnika kuće.
Treći zadatak: Dizajnirati prostor stvoren za uživanje
Kada su prva dva zadatka uspešno obavljena, preostao je da se ispuni i treći, ali najbitniji – osmisliti prijatan prostor stvoren za uživanje. Rešenje je pronađeno u beloj unutrašnjosti u kontrastu sa zemljanim bojama (beli zidovi, a pod i deo nameštaja u nijansama braon boje), dok kamin obezbeđuje prijatan i opuštajući ambijent.
Velika prednost je i činjenica da je ovaj depandans dovoljno veliki da s vremena na vreme primi više ljudi koji žele da se isključe iz urbane svakodnevnice, da „promene vazduh“, dobiju novu energiju i kreativne ideje, ili se jednostavno opuste u prirodnom okruženju.

Tako je sjajnom idejom tima iz Labhousa stvoren sjajan multifunkcionalni depandans, pa je u jednoj prostoriji moguće uživati i opustiti se u prijatnom ambijentu, već u drugoj se mogu obavljati uobičajeni kancelarijski poslovi, pa čak i poslovni sastanci, a sve to je smešteno u prelepoj prirodi daleko od gradske vreve.
Foto: labhous.com
Tagovi: